やまと住宅株式会社

 
インスタグラム
TEL 0120-65-2727
 
やまと住宅電話
  • TOP
  • 土地販売
  • 分譲住宅
  • 中古住宅
  • 新築戸建
  • 土地買取
  • 取引の流れ
  • 装備一覧
  • よくあるご質問
  • 会社概要
  • 採用情報
  • お問合わせ
トップ > 取扱物件一覧 > 中古住宅 > 【売家】高石市西取石七丁目

【売家】高石市西取石七丁目

2階建て 900万円

現状渡し

≪当社新築施工参考プラン≫
セット販売価格2980万円(税込)
土地900万円

【売家】高石市西取石七丁目

◇所在地: 高石市西取石7丁目73-5
◇最寄駅:JR阪和線 「北信太」駅 徒歩12分/南海本線 「高石」駅 徒歩16分
◇校区:清高小学校徒歩4分/高南中学校徒歩16分

———-

◆土地面積:23.69坪(78.32㎡)
◆私道負担:108.18持分1/8㎡
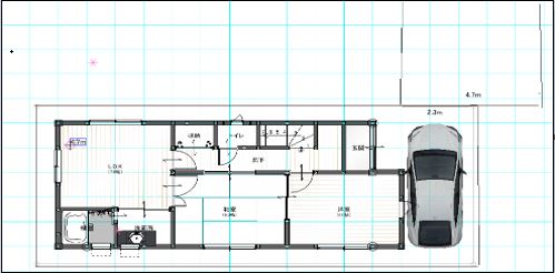
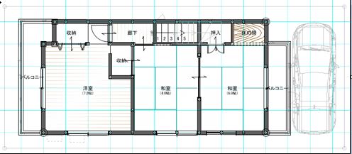
◆建物面積(延べ):
 1階:46.98㎡
 2階:40.09㎡
◆間取り:3LDK
◆建物構造:木造2階建
◆用途地域:第二種住居地域 準防火地域
◆都市計画:市街化区域
◆建ぺい率:60%
◆容積率:200%
◆前面道路:公道
◆道路幅:2.3m
◆ガス:都市ガス
◆水道:公営、公共下水

参考間取り図

やまとのお家とは?

光熱費0円!!3電池

取扱物件一覧

全ての物件を見る

カテゴリー

  • 分譲住宅
  • 土地販売
  • 中古住宅
  • 建替
  • 土地買取
  • お取引の流れ
  • 装備一覧
  • よくあるご質問
資料請求はこちらから
スマートハウス よくあるご質問 お取引の流れ 資料請求 装備一覧

大阪府堺市西区鳳西町1-75-2

営業時間 9:30〜18:30 /休日 火曜・水曜

  • TOP
  • 土地販売
  • 分譲住宅
  • 中古住宅
  • 新築戸建
  • 土地買取
  • 取引の流れ
  • 装備一覧
  • よくあるご質問
  • 会社概要
  • 採用情報
  • お問合わせ

©やまと住宅. All Rights Reserved.